• 650.000 €
  • 231 m²
  • 91 m²
  • 4 комнаты
  • 4 ванные комнаты

A beautiful, renovated village house in the centre of Llavaneres

цена
650.000 €
размер
231 m²
земельный участок
91 m²
комнаты
4
ванные комнаты
4

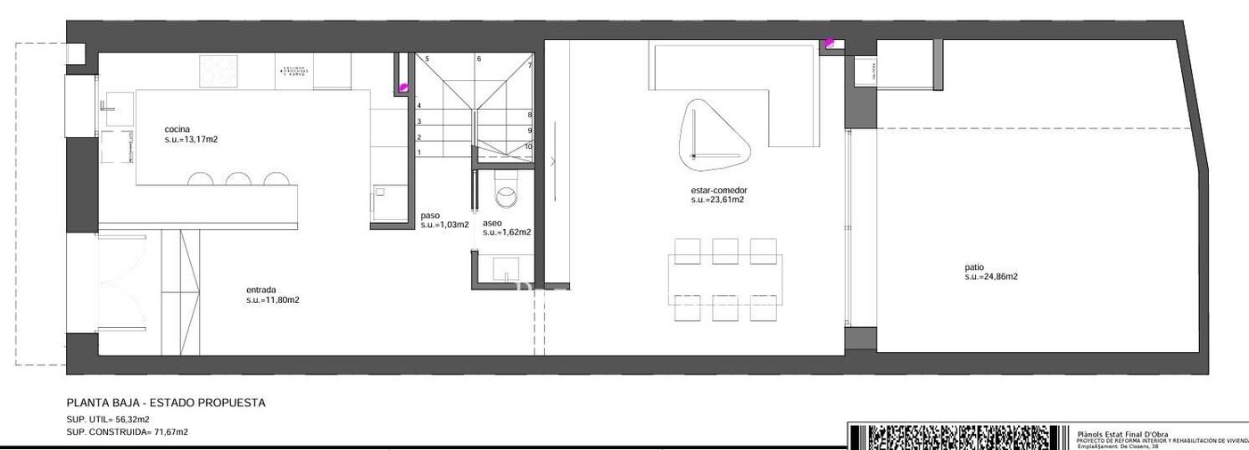
Right in the heart of Sant Andreu de Llavaneres lies this unique 231 m² village house, fully renovated using the highest quality materials and featuring a carefully designed interior scheme that blends tradition and modernity.

The property retains the character of the original buildings, incorporating elements such as exposed natural stone and solid wood, integrated with contemporary finishes and carefully designed lighting that brings warmth and sophistication to every space.

It is arranged over several floors with a practical and well-thought-out layout. The ground floor houses the main living area, featuring a spacious living room, an open-plan kitchen, a guest toilet and direct access to a cosy inner courtyard. This intimate and versatile outdoor space allows for the creation of everything from a garden area to a swimming pool or barbecue area, ideal for enjoying the Mediterranean climate.

The first floor features two en-suite bedrooms, one of which has a walk-in wardrobe, designed to offer comfort and privacy in a peaceful setting.

On the top floor, there is a multi-purpose room that can be adapted for various uses—such as an office, games room or lounge area—alongside an additional full en-suite bedroom.

The property stands out for its brightness, the quality of its finishes and the harmony between functionality and design. The property is delivered in impeccable condition, ready to move into.

детали

кондиционер
отопление
безопасность
энергетический сертификат
  • houseA
    92-100
  • houseB
    81-91
  • houseC
    69-80
  • houseD
    55-68
  • houseE
    39-54
  • houseF
    21-38
  • houseG
    1-20

о Sant Andreu de Llavaneres

Город Сант-Андреу-де-Льяванерес, также известный как Льяванерес, представляет собой очаровательный анклав недалеко от Барселоны, расположенный между горами и морем. С конца 70-х годов самые богатые семьи Барселоны предпочитали это место для своего загородного дома, где проводили лето и выходные дни. Здесь можно выделить 4 хорошо четко разделенных жилых секторов: Старый город находится недалеко от горы Ла-Риера, которая соединяет городской центр с Приморским районом или третьим сектором, и жилыми комплексами, расположенными в самой высокой части, откуда открывается великолепный панорамный вид на море.

В 1973 году был построен жилой комплекс Супермаресме, который считался одним из лучших в Испании, благодаря спокойной атмосфере и элитным домам. Льяванерас также очень известен в гастрономическом отношении двумя самыми известными фирменными блюдами: горох и лепешка «кока» из Льяванерес. Здесь располагается ряд развлекательных, спортивных и социальных центров, среди которых можно выделить гольф-клуб Льяванерас, основанный в 1945 году, а также пристань для яхт, известная как Мореходный клуб Балис и построенная в 1966 году.

запросить дополнительную информацию
Ref.PH103468

связанные свойства

Приватность и виды на Costa de Barcelona.

Приватность и виды на Costa de Barcelona.

Sant Andreu de Llavaneres
1.440.000 €
450 m²размер4.000 m²земельный участок4комнатыком.3 ванные комнаты
Экстраординарный сельский дом в зоне больших усадеб San Andreu de Llavaneres, соблазнительной по своему местоположению и превосходными видами. Идиллическое окружение, абсолютно приватное, великолепный участок практически плоский с прекрасным видом на средиземноморский берег и лесную зону. Прибежище мира и покоя. Жильё расположено практически на одном этаже, за исключением главной спальни, что на верхнем этаже. Весь фасад остеклён, эти большие оконные проёмы имеют гостиная – столовая и ещё кабинет. В задней части дома расположена кухня и остальные спальни. Главный апартамент сюит имеет огромную привлекательную ванную комнату с гидромассажем, с великолепными видами наружу. На этом же этаже есть очаровательная гостиная. Собственность включает в себя: бассейн, источник и хранилище воды, отопление.
Продается великолепный дом в Sant Andreu de Llavaneres

Продается великолепный дом в Sant Andreu de Llavaneres

Sant Andreu de Llavaneres
1.650.000 €
582 m²размер1.940 m²земельный участок5комнатыком.5 ванные комнаты
Недвижимость находится в городе Sant Andreu de Llavaneres, всего в 36 км от Барселоны с очень хорошим транспортным сообщением по шоссе и общественным транспортом. Город известен своими полями для гольфа, центрами верховой езды, пристанью для яхт и ресторанами с широким гастрономическим предложением. Кроме того, в городе расположены широкие пляжи с белым песком. Дом находится в престижной урбанизации Rocaferrera, в непосредственной близости от центра города. При входе в дом сразу ощущается роскошь и эксклюзивность интерьеров благодаря качественным материалам, использованным при строительстве. Планировка дома позволяет оценить простор каждой из комнат, о котором тщательно позаботились владельцы. Дом разделен на три просторных этажа, соединенных величественной лестницей. На основном этаже находится большая кухня со столом на десять человек и семейная гостиная с камином, из которой есть выход на большую площадку для барбекю, идеально подходящую для вечеринок и семейных торжеств. На этом же этаже находится спальня для гостей с ванной комнатой и санузлом. Также на этаже есть сюит (спальня с ванной комнатой) с гардеробной. Все комнаты светлые и с великолепным видом. Верхний этаж предназначен только для взрослых, где они могут наслаждаться абсолютным уединением. Здесь находится главная спальня с двумя независимыми ванными комнатами и двумя гардеробными. А также личный кабинет со встроенной гостиной и террасой с великолепным видом. Особо следует отметить качественные элементы дома: во всех комнатах есть кондиционирование воздуха через сплит-систему, газовое отопление, солнечные батареи, сбор дождевой воды, центральный пылесос, внутренняя и периметральная сигнализация, мраморные и паркетные полы, фарфоровая керамика высокого качества, используемая в отделке. Кроме того, на территории есть собственный колодец для полива всего сада, а также большой резервуар для воды.
Впечатляющий дом на ровном участке в Sant Andreu de Llavaneres- Rocaferrera

Впечатляющий дом на ровном участке в Sant Andreu de Llavaneres- Rocaferrera

Sant Andreu de Llavaneres
1.700.000 €
801 m²размер5.850 m²земельный участок11комнатыком.10 ванные комнаты
Продается великолепный дом, построенный на огромном ровном участке, расположенном в Rocaferrera, одном из лучших районов в Sant Andreu de Llavaneres. В доме два этажа плюс подвал на уровне сада. Благодаря небольшому уклону участка, вна нем царит атмосфера приватности. Участок более 5800 м², с ухоженным садом с травой, деревьями и бассейном. На нижнем этаже находятся великолепная библиотека, гостиная, кабинет, большая столовая, которая сообщается с кухней и большой сервисной зоной, ванная комната и четыре просторных спальни - сюит с соответствующими ванными комнатами, а также две двухместных спальни с общей ванной комнатой. Выход к великолепному саду с бассейном и бескрайним видом. На верхнем этаже находятся две очень просторных и светлых спальни - сюит с собственными ванными комнатами. В доме имеется подвал на уровне сада, с большой многофункциональной комнатой, спальней и большой ванной комнатой, которая также служит гардеробной. Несмотря на то, что дом требует ремонта, это один из лучших домов, которые можно найти в этом районе, обладающий подобными размерами и привилегированным расположением.
Продается дом с бассейном в Sant Andreu de Llavaneres

Продается дом с бассейном в Sant Andreu de Llavaneres

Sant Andreu de Llavaneres
1.950.000 €
786 m²размер7.075 m²земельный участок9комнатыком.6 ванные комнаты
Sant Andreu de Llavaneres — один из самых элитных и известных городов на Maresme благодаря порту Port Balís, его пляжам и комфортабельным жилым районам. Именно здесь, в Llavaneres, находится эта великолепная недвижимость рядом с гольф-клубами, теннисными кортами, падл-теннисом, государственными и частными школами. Здесь прекрасное траснпортное сообщение с Барселоной по скоростному шоссе, поездом и автобусом. Этот дом построен на участке площадью 7.075 м2. Вокруг дома разбит прекрасный сад, который дает приватность и уединение. На основном этаже находятся большая гостиная - столовая площадью около 80 м2 с камином, просторная кухня, одна спальня – сюит (спальня плюс ванная комната) и 3 двухместных спальни (2 которых располагают еще одной ванной комнатой). Большая прачечная, которая также включает в себя 2 подсобных помещения и ванную комнату. На первом этаже есть гостиная с камином, 2 спальни - сюит, одна из которых с большой террасой с видом на сад и на бассейн. В подвале расположены гараж на 2 машины, большая кладовая и полностью оборудованная кухня с выходом в сад и к бассейну. В собственности также входят вспомогательные постройки: гостевой или служебный дом площадью 95 м2 с двумя отдельными входами и раздевалками площадью 55 м2, ориентированными на открытый бассейн. Надо отметить захватывающие виды на море и горы, и возможностью наслаждаться видами восхода и заката.
Country house for sale in the centre of Llavaneres

Country house for sale in the centre of Llavaneres

Sant Andreu de Llavaneres
1.950.000 €
679 m²размер3.275 m²земельный участок6комнатыком.5 ванные комнаты
Sant Andreu de Llavaneres is considered one of the best towns in Maresme. It has golf clubs, horse riding, tennis, paddle tennis, Port Balís yacht club and a wide gastronomic offer. We find this magnificent and central Masia built in 1920 in perfect state of use. The Masia is located in the urban centre, being a great advantage to be able to live a very familiar life, due to the proximity to all the daily necessities. When we enter the property, we find a splendid garden with enough space to build an excellent swimming pool and even a guest house. Like all Catalan country houses, it is orientated to make the most of the hours of sunlight due to its original use for farm work etc. This gives this property plenty of light in all its rooms. On entering the house, we have a spectacular entrance hall which distributes the ground floor into a very spacious dining room, large living room and large kitchen, pantry and bedroom with bathroom for the service. On this same floor there is a bedroom and a guest bathroom. In the night area, a hallway leads us to the 3 bedrooms, two of which are suite, one double and a complete bathroom on the same floor. All the bedrooms have dressing rooms and wardrobes finished in oak. The master suite also has a small room with lots of light where you can relax with a good read. On the third floor there is a beautiful multipurpose room with wooden beams in perfect condition and with lots of light thanks to its large windows. On this floor a room with bathroom could be added or converted into a large play area or office for teleworking. The house has a garage for four vehicles, an open porch and a separate enclosed porch that can be used as a gymnasium, relaxation area or any other use. As characteristics to emphasize, the big garden very well kept and the qualities of the house like the ceilings with wooden beams, the stone of its walls or its finishes. All together make this property a little jewel in the centre of Llavaneres. The property also allows the possibility of adding two constructions or even to segregate and build 3 single-family houses. We have all the information in case you want to dispense with this wonderful country house and use the total of its plot (3.275 m approx) in three independent houses. A great opportunity to live in a large property or as an investment.
Exclusive new-build homes with frontal sea views

Exclusive new-build homes with frontal sea views

Sant Andreu de Llavaneres
2.590.000 €
517 m²размер2.898 m²земельный участок5комнатыком.6 ванные комнаты
We present the most exclusive private residential complex with sea views in Sant Andreu de Llavaneras. Luxury and discretion define it. Discover the only luxury residential complex located in a private gated community, with stunning sea views. Located just five minutes from the charming village of Sant Andreu de Llavaneras, these properties are the perfect retreat for those seeking tranquillity and elegance. Sant Andreu de Llavaneras is a privileged town, famous for its microclimate that makes it a perfect place to enjoy the sun all year round. Here you will find first-class golf courses, the exclusive El Balis yacht harbour, as well as tennis and paddle tennis clubs to satisfy the most demanding. In addition, its varied gastronomic offer will allow you to enjoy a unique culinary experience. And best of all, you are only 30 minutes away from Barcelona, where you can enjoy its rich cultural and gastronomic offer. Don't miss the opportunity to live in a place where luxury and nature meet! With a total surface area of 19.810m2, this residential complex of 6 single-family houses, each with a private garden and spectacular sea views. On entering the complex, we are greeted by a pleasant stroll through magnificent trees and low maintenance Mediterranean vegetation that leads directly to an underground street that gives access to the private garages with capacity for four cars for each of the properties. For more information about this property, please do not hesitate to contact us.
PREMIUM HOUSES Alella
Plaça Antoni Pujadas i Nirell, 3
PREMIUM HOUSES Sant Pol de Mar
Carrer Nou, 51
PREMIUM HOUSES Sitges
Avda. Camí­ dels Capellans, 75 Local 4
Мы используем наши собственные и сторонние файлы cookie, чтобы обеспечить безопасную работу нашего веб-сайта и персонализировать его содержимое. Точно так же мы используем файлы cookie для измерения и получения данных о вашей навигации, а также для настройки рекламы в соответствии с вашими вкусами и предпочтениями. Нажмите кнопку "Принять файлы cookie", чтобы подтвердить, что вы прочитали и приняли представленную информацию. Чтобы управлять этими файлами cookie или отключить их, нажмите "Настройки". Чтобы получить больше информации, смотрите нашу политику cookies.
Изменить куки
Технический и функциональный Всегда активный
Этот веб-сайт использует собственные файлы cookie для сбора информации с целью улучшения наших услуг. Если вы продолжите просмотр, вы соглашаетесь с их установкой. Пользователь имеет возможность настроить свой браузер, имея возможность, если он того пожелает, предотвратить их установку на свой жесткий диск, хотя он должен помнить, что такое действие может вызвать трудности при навигации по веб-сайту.
Аналитика и персонализация
Они позволяют отслеживать и анализировать поведение пользователей этого веб-сайта. Информация, собранная с помощью этого типа файлов cookie, используется для измерения активности в Интернете для разработки профилей навигации пользователей с целью внесения улучшений на основе анализа данных об использовании, сделанных пользователями службы. Они позволяют нам сохранять информацию о предпочтениях пользователя, чтобы улучшить качество наших услуг и предложить лучший опыт с помощью рекомендуемых продуктов.
Маркетинг и реклама
Эти файлы cookie используются для хранения информации о предпочтениях и личном выборе пользователя путем постоянного наблюдения за его привычками просмотра. Благодаря им мы можем узнать привычки просмотра на веб-сайте и отображать рекламу, связанную с профилем просмотра пользователя.