• 3,500 €
  • 225 m²
  • 3 Bedrooms
  • 2 Bathrooms

Commercial property in Vilafortuny

price
3,500 €
size
225 m²
Bedrooms
3
Bathrooms
2

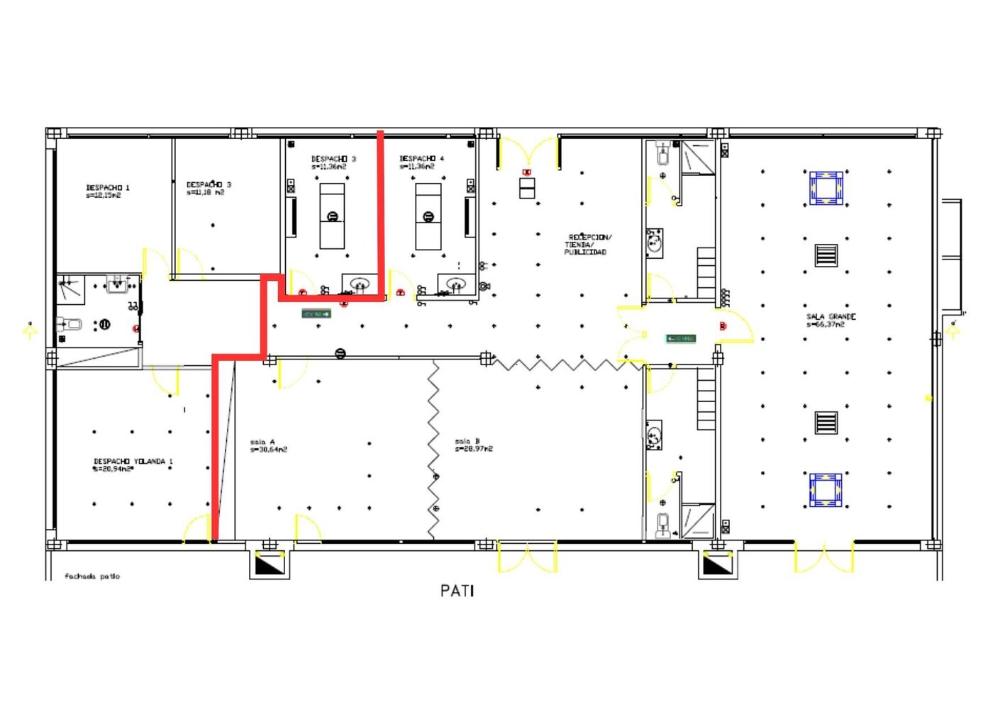
This commercial property is located in the Vilafortuny area of Cambrils. It has a floor area of 225 m², plus a 300 m² terrace. It is located on a busy street and has been recently renovated. Ideal for pharmacies, doctors' offices, or professional offices.

Possibility of renting a smaller space. Price upon request.

The property is distributed over a single floor.

The premises have a reception area, followed by two large rooms with parquet flooring. It also has two changing rooms with showers and a bathroom, as well as an office.

Vilafortuny is an area of Cambrils. It has all the necessary services. Cambrils combines Roman and medieval history, nature, high-level gastronomy, a family atmosphere, and cultural and sporting activities.

Details

heating
phone
terrace
Energy certificate
  • houseA
    92-100
  • houseB
    81-91
  • houseC
    69-80
  • houseD
    55-68
  • houseE
    39-54
  • houseF
    21-38
  • houseG
    1-20
Request more info
Ref.PHS101213

Related properties

Detached house with pool and garden in Vilafortuny

Detached house with pool and garden in Vilafortuny

Cambrils
595.000 €
294 m²Size603 m²Plot5BedroomsBedroom3 Bathrooms
In Vilafortuny, we find this detached house with a pool and garden. The house is part of a private residential complex with a tennis court, communal pool, soccer field, and pelota court. The house is spread over four floors: The ground floor has a spacious living/dining room with access to the garden and pool, followed by a separate kitchen with a fireplace and a double bedroom with en-suite bathroom. The first floor combines the sleeping area with the work area. An elegant library and an office open to the living room make up the work area. Two double bedrooms and a full bathroom form part of the sleeping area. One of the bedrooms is currently used as a dressing room/laundry room. The second floor houses the sleeping area, consisting of a double bedroom with en-suite bathroom and a single bedroom with access to the terrace. The basement contains a garage with space for two cars, a workshop, and a barbecue area. The Vilafortuny neighborhood of Cambrils is one of the most highly valued residential areas on the Costa Dorada thanks to its peaceful atmosphere throughout the year, perfect for both permanent residence and vacations. Its wide beaches have fine sand and very clean waters and make up an unbeatable natural environment. Vilafortuny has all the necessary everyday services, offering everything you need without having to travel far. Its main cultural attraction is Vilafortuny Castle, a historic 12th-century building surrounded by gardens, which gives the neighborhood a special charm and a touch of unique identity. Its location is unbeatable, as it is only 20 minutes from Tarragona, 30 minutes from the AVE station (Camp de Tarragona), and 1 hour from Barcelona Airport. In short, Vilafortuny combines quality of life, heritage, sea, and excellent communications in a privileged setting.
Detached house with pool and garden in Vilafortuny

Detached house with pool and garden in Vilafortuny

Cambrils
1.600.000 €
352 m²Size1.167 m²Plot6BedroomsBedroom6 Bathrooms
This elegant detached house with a private pool and large garden is located in the exclusive area of Vilafortuny, Cambrils. Set on a generous plot, the property offers complete privacy. The house is spread over three floors: The ground floor has a living/dining room with a fireplace and access to the porch, a kitchen with a laundry room, two en-suite bedrooms, and a bathroom. The first floor houses the sleeping area, consisting of two double bedrooms with access to the shared terrace. A second full bathroom is located on this floor. In the basement, there is a second kitchen with a dining room, a storage room, two multipurpose rooms, two en-suite bedrooms, and a full bathroom. Additionally, the property has a garage with space for two cars. Vilafortuny, located in the municipality of Cambrils, has all the necessary amenities for everyday life without the need for long journeys. Its main cultural attraction is Vilafortuny Castle, a historic 12th-century building surrounded by gardens, which gives the neighborhood a special charm and unique identity. In addition to its history, Vilafortuny stands out for its proximity to the beaches of the Costa Dorada, known for their calm waters and family atmosphere. The area also offers excellent Mediterranean cuisine. Just 20 minutes from Tarragona, 30 minutes from the AVE high-speed train station (Camp de Tarragona) and 1 hour from Barcelona airport, its location is unbeatable for those looking for a second home with good connections to Europe. In short, Vilafortuny combines quality of life, heritage, sea, and excellent communications in a privileged setting, making it an ideal choice for living or investing on the Mediterranean coast.
Detached house with garden and pool in Vilafortuny

Detached house with garden and pool in Vilafortuny

Cambrils
860.000 €
285 m²Size400 m²Plot4BedroomsBedroom3 Bathrooms
Detached house in a modern minimalist style in the quiet neighborhood of Vilafortuny, in Cambrils. Recently built and in perfect condition, the property offers a comfortable and practical lifestyle. It also has a garage with space for three cars. The house is distributed over three floors: The ground floor is the living area, consisting of a living-dining room and an open kitchen with an island. Both spaces have direct access to the garden. The living room connects to the front garden, where we find the swimming pool, while the kitchen opens onto the back garden. This floor also includes a full bathroom and a practical laundry room. The first floor is the sleeping area, consisting of three spacious double bedrooms, one of which is en suite with a dressing room. A second bathroom serves the other two bedrooms. The floor is completed by a fourth room, which is currently used as a workspace. In the basement there is a garage with space for three cars. This space has a pre-installation for an electric vehicle charging point, a storage room, and a machinery room. The house is equipped with aerothermal energy and solar panels, which provide hot water, heating, and underfloor heating, improving its energy efficiency and allowing savings of up to 70% on the electricity bill. The Vilafortuny neighborhood is known for its tranquility throughout the year and its beautiful sandy beaches. It has all the necessary amenities and is a place that combines Roman and medieval history with a rich gastronomic, cultural, and sporting offer, ideal for families. In addition, it is only 20 minutes from Tarragona and one hour from Barcelona airport, making it an unbeatable location to enjoy the Mediterranean quality of life.

Your recently viewed properties

Masia with Vineyards in Alt Penedés

Masia with Vineyards in Alt Penedés

Castellet i la Gornal
2.200.000 €
1.314 m²Size150.000 m²Plot10BedroomsBedroom3 Bathrooms
We find this impressive farmhouse for sale in the Alt Penedés region. The property is listed as dating back to the 18th century and has 14 hectares of vineyards with the original Alt Penedés appeal. The Masía is completely surrounded by vineyard fields. The house has 1,314 built square meters and consists of a ground floor and two upper floors. It also has an attached house that was the sharecropper's. Accessing the Masía through the main entrance we find the day area; composed by a hall, a large dining room and a kitchen with fireplace. Going up to the first floor we find the night area that is distributed in a large living room, four bedrooms and a bathroom. We continue going up one more floor and we find an attic made up of two rooms. Attached to the main house, we have the house that was used by the sharecropper and consists of a day area with dining room, kitchen with fireplace and three bedrooms. Going up one floor we find the night area made up of three bedrooms and a bathroom. The farmhouse also has an old attached winery from which you can access a large terrace with impressive views of the vineyards. The entire property has been recently renovated, making it a unique investment opportunity with several possibilities for developing businesses (including horse riding) in Alt Penedés. Hotel uses, rural tourism, holiday apartments and even a senior residence are authorized. The house has a municipal water supply and a three-phase electrical network. This rustic property located in Alt Penedés is 25 minutes from Sitges and one hour from Barcelona. The Alt Penedés region is famous for the Designations of Origin of its high-quality wines and cavas.
Urban plot for sale in la Martorella, Roda de Berà

Urban plot for sale in la Martorella, Roda de Berà

Roda de Bara
95.000 €
586 m²Size
Nice urban land with sea views for sale in the beautiful and quiet neighborhood of La Martorella, in Roda de Berà. Of 586 m2, quite flat and therefore easy to build, it allows to build a house of up to 158 m2 on one or two floors. Basement apart. URBAN REGULATIONS (Clave 3f): Minimum plot size 400 m2 Maximum buildability of 0.27 m2/m2 plot. Maximum occupancy 27%. Minimum frontage of 16m2 Maximum regulatory height 6,50 = first floor + second floor Permitted use: Single-family detached building. Roda de Berà is a municipality in the province of Tarragona with a long history dating back to Roman times. It is not possible to pinpoint an exact date of its foundation, since its origin lies in a Roman settlement called Rodanum. This settlement was part of the Roman colony of Tarraco (present-day Tarragona) and is believed to have existed around the 1st century BC. The municipality is home to important historical remains, such as the Torre de la Móra, an ancient watchtower built in the 16th century to defend the coast from possible pirate attacks, and the Roman Villa of Els Munts, evidence of the rich history of the region. Currently, Roda de Berà, is a population of about 9,000 inhabitants. It has multiple beaches with crystal clear waters and fine sand. Among which are the Playa Llarga and Playa del Francàs, both awarded the Blue Flag for the quality of its waters and services. It also offers numerous options for nature lovers, such as hiking trails through pine and oak forests. In addition, the Parc Natural dels Munts offers the opportunity to practice water sports such as kayaking and paddle surfing. Roda de Berà is, without a doubt, an ideal destination for those looking to combine sun and beach tourism with culture and history in a privileged natural environment.
Centrally located country house for sale in Orrius, with business in operation (hotel business).

Centrally located country house for sale in Orrius, with business in operation (hotel business).

Orrius
1.600.000 €
901 m²Size2.000 m²Plot7BedroomsBedroom4 Bathrooms
In the Maresme region, 35 minutes from Barcelona, we offer you this beautiful country house, impeccably restored, surrounded by nature, in the small village of Orrius, which is located between the towns of Cabrils, Vilassar de Dalt, Argentona and La Roca del Vallés. It is notable for the church of Sant Pere de Clará, built in the 9th century. Located in the centre of the village, with all the services within walking distance and with its own business, a restaurant in full operation, annexed to the house, in the old horse stables. If you had something similar in mind, this is the perfect opportunity. The property, the main house, is distributed in three floors. On the ground floor there is a large entrance hall with very original decorative tiles. We continue to the large living room with a fireplace, a spacious traditional dining room and a kitchen/dining room which conserves the fireplace where they used to cook in the old days. The first floor can be accessed by the stairs of the house or the service stairs, and there are three double bedrooms, a suite with fireplace, complete bathroom, large dressing room and access to the terrace. Small office and laundry area. Going up to the third floor there is a large open space with attic, three bedrooms and a beautiful bathroom. The outbuilding, formerly a stable, has been converted into a fully functioning restaurant. It could be converted into a guest house, an area for multiple activities or any other project. In front of it a large garden area and terrace, where you can perfectly make a swimming pool. Unbeatable surroundings, tranquillity, privacy, nature. Charming village.
PREMIUM HOUSES Barcelona
Avda. Pau Casals, 5
PREMIUM HOUSES Alella
Plaça Antoni Pujadas i Nirell, 3
PREMIUM HOUSES Mataró
Avda. Maresme, 143
PREMIUM HOUSES Sant Pol de Mar
Carrer Nou, 51
PREMIUM HOUSES Sitges
Avda. Camí­ dels Capellans, 75 Local 4
PREMIUM HOUSES Llavaneres
Avda. Catalunya, 2
We use our own and third-party cookies to make our website work safely and personalize its content. Likewise, we use cookies to measure and obtain data on your navigation and to adjust advertising to your tastes and preferences. Press the "Accept all" button to confirm that you have read and accepted the information presented. To manage or disable these cookies, click on "Configuration". For more information see our cookies policy.
Modify cookies
Technical and functional Always active
This website uses its own Cookies to collect information in order to improve our services. If you continue browsing, you accept their installation. The user has the possibility of configuring his browser, being able, if he so wishes, to prevent them from being installed on his hard drive, although he must bear in mind that such action may cause difficulties in navigating the website.
Analytics and personalization
They allow the monitoring and analysis of the behavior of the users of this website. The information collected through this type of cookies is used to measure the activity of the web for the elaboration of user navigation profiles in order to introduce improvements based on the analysis of the usage data made by the users of the service. They allow us to save the user's preference information to improve the quality of our services and to offer a better experience through recommended products.
Marketing and advertising
These cookies are used to store information about the preferences and personal choices of the user through the continuous observation of their browsing habits. Thanks to them, we can know the browsing habits on the website and display advertising related to the user's browsing profile.